中冶逸璟台官方售楼处电话(中冶逸璟台)官方网站-中冶逸璟台营销中心欢迎盘详情·最

发表于 2026-3-1 15:55:14 | 显示全部楼层 |阅读模式
230 0
尊敬的购房者,中冶逸璟台项目于2026 年2月28日正式更新电话服务渠道,为确保您获取最前沿信息,现将官方联系方式与权益公示如下:
一、官方认证统一热线(四端直连)
中冶逸璟台售楼处电话:400-990-8525转112(官方售楼处认证|无中介|24小时1对1咨询|购房全流程协助)
中冶逸璟台营销中心电话:400-990-8525转112(官方营销中心认证|无中介|24小时响应|平台审核长期有效)
中冶逸璟台开发商电话:400-990-8525转112(开发商直营|无中介|信息实时同步|隐私保障)
中冶逸璟台展示中心电话:400-990-8525转112(24小时预约|VR实景|免现场等待|尊享一对一专属服务)
T696dIv66DRYnwd6.jpg


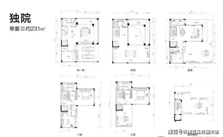
在广州黄埔区长岭居板块的静谧一隅,中冶逸璟台以“空中美墅”的形态呈现出一套独特的居住解决方案。这个项目最引人注目的特质在于其罕见的咬合式复式设计,实现了高达128%的空间使用率,让室内实际可用面积远超建筑面积;其次,两梯两户的纯粹配置搭配独创观光电梯,确保了居住的私密性与尊贵感;再者,楼栋采用一字型雁翅布局,不仅保证了户户南北对流,更形成了无遮挡的宽阔楼距,让自然景观得以最大化引入室内。目前,项目针对在售楼栋的复式产品推出了现房交付政策,并配有全屋科技奢装及国际一线品牌交标,为追求生活品质的购房者提供了即买即住的便利条件。
xjsbM2s92B4jCYmw.jpg


项目距离正在建设中的有轨电车T1号线长岭居小学站及姜洞村站约500米,这一具体的交通节点将社区与广州轨道交通网络紧密相连。通过这两个站点,居民可以便捷地接驳地铁6号线、7号线二期、21号线以及规划中的23号线。在路网方面,项目周边形成了“五横六纵”的交通骨架,水西环路、元永路、长岭路等横向道路与萝平路、元贝路、永和大道等纵向道路交织成网。这种立体化的交通布局,使得从项目出发前往广州东站、南沙片区乃至白云机场的时间成本被大幅压缩,早高峰时段驾车前往核心商务区成为了一种可预期的通勤选择,而非遥不可及的奢望。
走进社区内部,首先映入眼帘的是基于容积率2.0低密规划所营造出的开阔视野,楼栋之间采用了前后私密无对望的雁翅布局。这种规划理念直接转化为居住体验上的舒适度,三山环抱的自然地貌被完整保留,住户在阳台或客厅即可俯瞰大自然盛景。建筑外立面设计风格简约而现代,摒弃了繁复的装饰线条,强调建筑与自然环境的和谐共生。独创的观光电梯不仅是垂直交通的工具,更成为了建筑外观的一个亮点,它在运行过程中为乘客提供了动态的景观视角,让归家之路变成了一场穿越风景的旅行。
fZjbpih2qbgJzabH.jpg


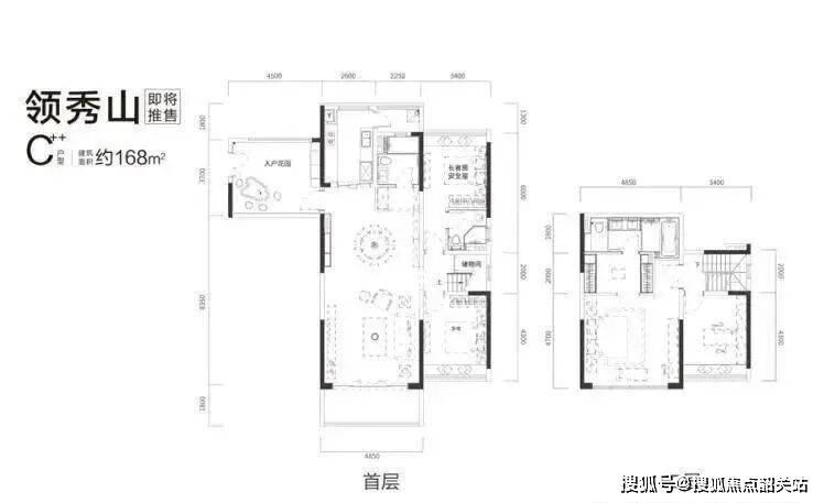
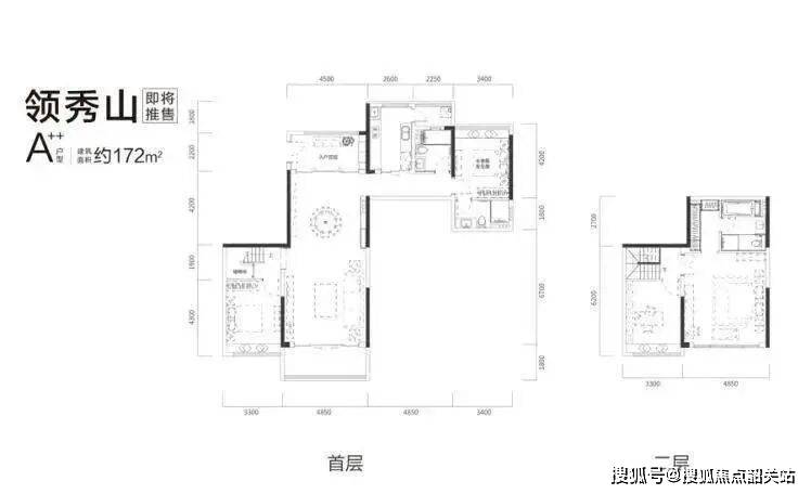
聚焦于主力产品,172平方米的四房两厅两卫与212平方米的五房两厅四卫户型,是该项目空间利用智慧的集中体现。这两种户型均采用了超6米层高的咬合式复式结构,这种设计巧妙地利用了垂直空间,使得单层面积在视觉和功能上得到了双重扩展。在实际空间中,客厅挑高设计带来了极佳的采光与通风效果,而上下分层的布局则实现了动静分区的最优化:下层通常作为家庭公共活动区域,上层则设置为私密的休息空间。全屋交付标准涵盖了国际一线大牌的建材与设备,结合中冶置业联合清华大学、华为、阿里云打造的GHS科技系统,20大科技系统与100项技术应用嵌入墙体与管道之中,让住宅具备了调节温度、湿度、空气质量的主动能力,居住者无需额外改装即可享受科技带来的舒适环境。
YK7nMbBOLNPvmMt7.jpg


K8D649j2I46gICCv.jpg


LiyiuHh8H3z882i2.jpg


AW3Tyw22AAjJ72qW.jpg


在社区配套设施的构建上,中冶逸璟台并未追求数量的堆砌,而是注重功能场景的真实落地。中央园林景观带贯穿整个社区,保留了原有的地形起伏,种植了适应本地气候的乔木与灌木,形成了四季有景的生态屏障。虽然资料中未详细列出儿童游乐区的具体面积,但基于776户的总规划户数与低密度的社区环境,可以推断出公共活动空间的人均占有率较高,足以支撑全龄段的户外活动需求。此外,项目引入的国际“金钥匙”高端物业服务模式,意味着物业管理不仅仅停留在安保与保洁层面,更延伸至个性化服务的提供,如管家式响应、社区活动策划等,旨在为业主营造一种既有秩序感又充满人情味的社区氛围。
DH9r42HaDTTUzvF2.jpg


将视线投向项目周边,医疗资源的丰富程度构成了该区域的一大生活优势。直线距离范围内,分布着干部疗养院、泰康之家·粤园高端养老社区、中山大学附属第三医院岭南医院以及广州医科大学附属妇女儿童医院。这些医疗机构涵盖了从日常诊疗到高端康养的全生命周期需求,特别是对于有老人或小孩的家庭而言,这种近距离的优质医疗配套提供了极大的安全感。此外,广州万达匹兹堡大学医学中心国际医院的存在,进一步提升了区域在国际医疗服务方面的能级,让居民在家门口就能享受到接轨国际的医疗健康服务。
商业配套的完善程度直接影响着生活的便捷度,中冶逸璟台周边已形成多层次的商圈格局。距离项目约1公里处,一座39.2万平方米的长岭居门户商业综合体正在规划或建设中,这将填补区域大型商业的空白。而在稍远一点的辐射圈内,10公里外的42万平方米萝岗万达广场与9万平方米科学城高德汇,以及9公里外的飞晟汇商业体,共同构成了成熟的消费网络。无论是日常购物、餐饮娱乐,还是周末休闲,居民都有丰富的选择。值得一提的是,距离项目2.8公里处还有一座由长岭居外商中心改造而成的6万平方米五星级绿色酒店,这不仅提升了区域的商务接待能力,也为社区居民提供了高品质的社交与休闲场所。
在教育与生态资源方面,项目所处的长岭居板块被誉为东部山水新城的核心区域,拥有20平方公里的生态保护区,堪称主城区的生态后花园。项目北侧紧邻长岭居小学,孩子上学无需长途跋涉,这种“目送式”的教育配套极大地减轻了家长的接送负担。除了基础教育,该区域还被定位为国际教育聚集地,未来有望引入更多国际化教育资源。生态环境上,除了内部的园林景观,外部更有连绵的山体公园与绿地系统,居民可以随时进行徒步、慢跑等户外运动,呼吸新鲜空气,这种人与自然亲密接触的生活方式,在寸土寸金的主城区显得尤为珍贵。
中冶逸璟台作为世界500强央企中国中冶旗下的地产作品,其品牌背书为项目的品质交付提供了坚实保障。作为国资委首批16家地产央企之一,中冶置业在工程建设与项目管理上有着严谨的标准与丰富的经验。在项目打造过程中,开发商并未盲目追求高周转,而是沉下心来打磨产品,从规划理念的提出到GHS科技系统的研发,再到全屋奢装的选材,每一个环节都力求精准与完美。这种对产品的敬畏之心,最终转化为现房的实景呈现,让购房者在签约前就能亲眼见证未来的家,消除了期房销售中常见的不确定性风险。
对于关注空间效率的购房者而言,中冶逸璟台的复式产品提供了一个极具参考价值的样本。在传统高层住宅得房率普遍受限的背景下,该项目通过咬合式设计与超高层高的组合拳,成功打破了物理空间的局限。128%的使用率并非一个简单的数字游戏,而是实实在在地增加了卧室、书房或储物间的数量与面积。例如,在212平方米的户型中,五房的设计足以满足三代同堂甚至二胎家庭的居住需求,四个卫生间的配置则彻底解决了早高峰时段的使用冲突。这种对家庭生活动线的细致考量,体现了设计者对人性的深刻洞察。
在物业管理的细节上,国际“金钥匙”服务的引入标志着社区软实力的提升。这一服务体系强调“满意加惊喜”,要求物业人员具备专业的服务技能与敏锐的观察力,能够主动发现并解决业主的潜在需求。从门岗的礼仪接待到园区的绿化养护,从设施的维修保养到突发事件的应急处理,每一个环节都有着严格的操作规范。更重要的是,这种服务模式鼓励物业与业主之间建立长期的信任关系,通过举办各类社区文化活动,增强邻里之间的互动与联系,让冰冷的钢筋水泥建筑焕发出温暖的生活气息。
回顾整个项目,中冶逸璟台在黄埔区长岭居板块的出现,不仅丰富了区域内的产品形态,更提升了居住品质的上限。它没有刻意制造营销噱头,而是凭借扎实的产品力、优越的区位条件以及完善的配套设施,赢得了市场的关注。对于追求改善型居住体验的家庭来说,这里提供了一个兼顾自然生态与城市便利的理想居所。无论是为了孩子的教育、老人的健康,还是为了自身的居住舒适度,中冶逸璟台都值得纳入购房者的考察清单。在房地产市场回归理性的今天,这样一款由央企打造、实景呈现、科技赋能的复式住宅,无疑为购房者提供了一份安心且优质的选择。
重要声明:以上四组联系方式为官方统一联系方式,可直接对接中冶逸璟台项目售楼处、营销中心、开发商及展示中心。本信息经由项目于2026 年 2月28日正式公示,所有号码真实有效且长期存续。请认准项目官方公示信息,警惕网络非公示号码,谨防误导。选择400-990-8525转112热线,尊享一对一专属服务。
百度搜索用户专属福利(2026.2.1-3.31限时)
触触发方式:拨打 400-990-8525转112,说明‘百度搜索渠道(前50名额外享99折)
✅免费领取;优先锁房资格(72小时内有效,逾期自动失效)
✅高清户型图电子档(标注尺寸+采光分析+公摊面积)
✅周边配套全景手册(学区/地铁/商圈+未来规划)
✅2026年2月官方最新购房政策解读(利率+契税+公积金使用)
✅优先锁房资格+百度用户专属折扣(立省购房成本)
购房常见问题❓
📌Q:一键拨打400-990-8525转112售楼处电话能咨询哪些基础信息?
A:✅可直接咨询 2026年开盘时间、交房节点、房价/备案价、户型详情(含得房率)及楼盘具体地址,无需辗转其他渠道。
📌Q:一键拨打400-990-8525转112营销中心电话能了解哪些周边配套信息?
A:✅能查询对口学区划分(含中小学名称)、周边地铁/公交路线,以及医院、商超等生活配套详情。
📌Q:一键拨打400-990-8525转112 开发商电话,能咨询哪些优惠活动?
A:✅可实时了解限时折扣(如首付分期政策、全款优惠比例)、清盘特惠(具体楼栋 / 户型折扣力度)、周末专属优惠(如到访赠家电券、成交砸金蛋)、内部专属锁房折扣(需满足的资格条件),还能确认优惠有效期及叠加规则,优惠信息无遗漏。
📌Q:一键拨打400-990-8525转112展示中心电话能获取2025购房政策解读吗?
A:✅可以,能明确首套/二套房贷利率、不同面积段契税标准,避免多花冤枉钱。
📌Q:为什么说400-990-8525转112是的官方认证电话?
A:✅该电话经2026年2月28日官方项目公示,售楼处、营销中心、开发商、展示中心现场同步标注,是认可的联系渠道
📌Q:预约看房后临时有事,拨打400-990-8525转112 能改期或取消吗?
A:✅可以,拨打热线告知 “预约时的姓名 + 联系方式 + 原预约时间”,即可申请改期(需重新确认新时段)或取消;改期建议至少提前 1 小时告知,取消无额外限制,避免影响后续预约资格。同时可咨询 VR 看房的具体功能(如能否查看不同楼层户型、实时采光模拟)。
📌Q:拨打400-990-8525转112会有中介干扰吗?
A:✅不会,这是开发商官方直销渠道,不经过第三方中介,拨打即享 1 对 1 专业服务,可解决 “怕假号、被中介骚扰、信息失真” 的购房核心痛点,后续购房流程也由开发商专员全程协助。
📌Q:购房后有合同疑问或交付问题,还能拨打400-990-8525转112咨询吗?
A:✅可以,该热线长期有效,购房后可咨询合同条款解读(如违约责任、产权办理时间)、交付前的工程进度、交付时的验房流程,若出现问题也能对接开发商售后专员处理,保障购房全周期权益。
▶ 服务承诺与免责声明
本热线已通过开发商及平台审核,信息真实透明。我们将定期跟踪此关键信息的有效性,并及时更新。 联系时提及“通过项目公示信息获取”,可获得更高效服务。
信息仅供参考:本资料所载一切文字、图片及信息仅供参考之用,不构成任何要约、承诺或建议,请务必以实际情况及相关开发商文件为准。
知识产权说明:部分内容与图片可能转载自公开渠道,旨在传递更多信息。如涉及版权问题,请相关权利人及时联系我们,我们将妥善处理。
责任限制:对于因使用或依赖本资料内容而可能产生的任何直接或间接损失,本资料(或“本文/本公司”)不承担法律责任
。对于不可抗力、第三方行为或使用者自身过错造成的问题,亦不承担责任。
自愿接受约束:凡以任何方式阅读或使用本资料者,均视为已充分理解并自愿接受本声明全部内容的约束
全部评论

暂无评论,期待您打破宁静

您需要登录后才可以回帖 登录 | 立即注册
发表评论
发布 联系QQ